Представените проекти са реализирани от мен под ръководството на арх.С.Ризов, в сътрудничество с екип от инженери. Моят принос включва прецизната изработка на проектната документация и графичните материали, координация на различните специалности и активно участие в проектирането. Проектите обхващат задания от обществени поръчки и частни инвеститори.
Център за резидентна грижа за хора с психически проблеми
Проектът създава три резидентни къщи с общ капацитет 15 души, предоставящи домашна среда и комфорт за дългосрочна грижа. Двуетажната „Сграда 1“ и две едноетажни сгради обединяват общо дворно пространство с обособени зони за дейности и релаксация. Достъпността е приоритет, със системи за сигурност и фотоволтаична инсталация за енергийна ефективност. Интересното в този проект беше справянето с значителната денивелация на терена - почти 4 метра.
- използвани програми: Autocad, Archicad
-
адрес: с. Царев брод
Къща част от затворен комплекс
Луксозна къща с лятна кухня, част от затворен комплекс. Проектът включва хол през две нива, спа зона, работни кабинети и жилищни помещения. По желание на клиента беше изпълнена симулация на целодневното ослънчаването в хола и интерактивна презентация с включени 2D, 3D и виртуална реалност
- използвани програми: Autocad, Archicad
-
адрес: с. Герман
ИП за ремонт и преустройство на сграда на съдебната власт
ИП за ремонт и преустройство на сградата на бившата Софийската техническа гимназия за нуждите на съдебната власт. Сградата не е паметник на културата, но имаше изискване за минимална намеса по фасадите. Интересното на този обект беше да се приведе към действащата противопожарна наредба. Това наложи направа на външно евакуационно стълбище и корекция в наклона на един от скатовете на покрива. За да се осигурят минималният брой изискуеми паркоместа беше предвиден подземен паркинг с отворена част, за да се избегне нуждата от изграждане на пожарогасителна инсталация.
- използвани програми: Autocad, Archicad
-
адрес: София, бул. Стамболийски
Къща за гости "Едно време"
Къща за гости в зона на културно наследство. Триетажната сграда съчетава традиционната карловска архитектура с модернистични елементи, използвайки естествени материали като камък и дърво. Първият етаж включва рецепция, дневна и стаи със самостоятелни изходи към двора. Проектът придава уют и функционалност, осигурявайки комфорт за гостите в съвременна среда.
- използвани програми: Archicad, Autocad
-
адрес: Карлово, ул.Раковска 7
- уеб сайт на обекта: линк
Калкулатор за площи
Личен проект за пресмятане на площите необходими за изготвяне на количествени сметки. В таблицата се описват параметрите и елементите на помещенията, и предвидените покрития. Накрая системата извежда сумата на всички предвидени материали. Възможността за прецизно описание на помещенията дава много висока точност на резултатите и възможност за бърза проверка, при съмнение за грешка. Системата може да пресмята и помещения със сложна форма, включително и тавански скосени стаи. В линка по-долу можете да видите видео представяне.
- използвани програми: automation
- видео презентация
Еднофамилна къща
Двуетажна еднофамилна къща, включваща общи помещения (зона 'ден') на първи етаж и спални на втори етаж (зона 'нощ'). До къщата е разположена лятна кухня с трапезария, а до нея гараж за два автомобила. По желание на клиента беше изпълнена интерактивна презентация с включени 2D, 3D и виртуална реалност. За съжаление проектът не се реализира.
- използвани програми: Autocad, Archicad
-
адрес: с. Осойца
Саниране на блок в Пловдив, ул.Васил Априлов
Саниране на жилищен блок с четири входа по програмата за енергийна ефективност. Бяха изпълнени поправка на хидроизолацията на покрива, мълниезащитна инсталация, освежителен ремонт на стълбищата, вкл. подмяна осветителните тела и др.
- използвани програми: Autocad
-
адрес: Пловдив, бул.Васил Априлов
Видео разходка около жилищна сграда на Захарна фабрика
Реставрация на сграда паметник на културата, част от комплекса на Захарна фабрика. Моето участие беше направата на тази виртуална разходка около сградата.
- използвани програми: Archicad, Lumion
- видео презентация
-
адрес: София, кв. Илинден
Център за подкрепа на лица с увреждания
Проект за преустройство на съществуваща сграда в „Център за подкрепа на лица с увреждания“. Центърът осигурява дневна и почасова грижа, рехабилитация, консултации и арт-терапия за до 90 души. Пространството включва специализирани зали, медицински кабинет, кухни и санитарни помещения, с акцент върху достъпната среда и безопасност. Интериорът е с функционално разпределение и материали, позволяващи лесна поддръжка и дълготрайност.
- използвани програми: Autocad
-
адрес: Варна, кв. „Аспарухово“, блок 11,
- уеб сайт на обекта: линк
Автоматични коти
Личен проект за автоматично пресмятане на котите по височина. Това са динамични свързани блокове, с които работя много по-бързо и по-точно. Има една водеща кота, която се поставя в ситуацията - от нея се задава абсолютната височина на кота ±0,00. Останалите коти се разполагат по планове и фасади. Те са свързани и при корекции отчитат промените в абсолютната височина и разликите във височините по между им. В линка по-долу можете да видите видео представяне.
- използвани програми: Autocad, automation
- видео презентация
Саниране на СОУ Алеко Константинов
Проект за саниране на СОУ "Алеко Константинов". В училището бяха изпълнени мерки за привеждане към нормите за достъпна среда, вкл. изграждане на асансьор. В дворното пространство бяха изпълнени нови спортни съоръжения и рехабилитация на физкултурен салон, игрища и съблекални.
- използвани програми: Autocad
-
адрес: Луковит, ул. Възраждане 104
- уеб сайт на обекта: линк
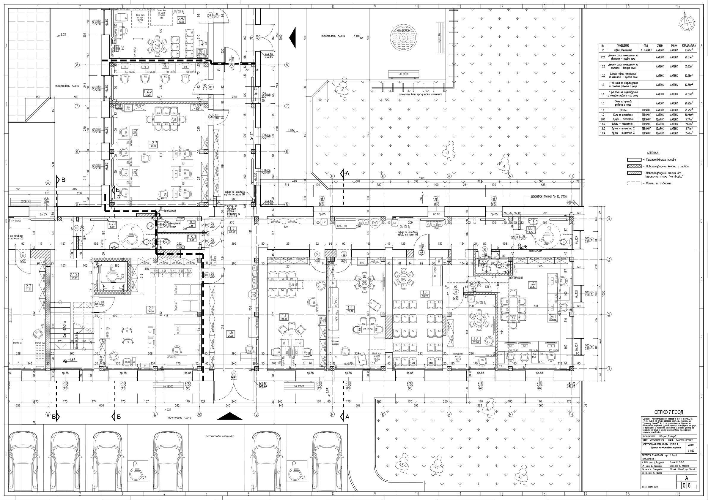
Реконструкция на Център за обществена подкрепа
Сградата e построена през 1884г и е културна ценност с местно значение и беше трансформирана с минимална фасадна намеса. Бяха обособени три крила за социални услуги - центрове за обществена подкрепа и дневен център за деца с увреждания. Достъпната среда беше осигурена чрез рампи, широки входове и асансьор. Интересното на този проект беше разполагането на специализирано медицинско и рехабилитационно обзавеждане според зададените зони и функции.
- използвани програми: Autocad
-
адрес: Пловдив, ул. Димитър Цончев № 11
- уеб сайт на обекта: линк
Саниране на блок в Пловдив, ул.Лотос
Саниране на жилищен блок с четири входа по програмата за енергийна ефективност. Бяха изпълнени поправка на хидроизолацията на покрива, мълниезащитна инсталация, освежителен ремонт на стълбищата, вкл. подмяна осветителните тела и др.
- използвани програми: Autocad
-
адрес: Пловдив, ул. Лотос
Автоматична таблица под, стени, таван
Личен проект за автоматично попълване на таблицата за под, стени, таван. Представлява група от свързани обекти, които ми спестяват нуждата да попълвам квадратурите на две места (в план и в таблицата). Квадратурата се взима автоматично от периметъра на помещението и се записва и на двете места. При добавяне на ново помещение номерата на последващите помещения се коригират автоматично. Това ми спестява много време иначе похабено в търсене кое на кое отговаря и дали са еднакви стойностите. В линка по-долу можете да видите видео представяне.
- използвани програми: Autocad, automation
- видео презентация
Реконструкция на административна сграда с аптечен склад
Проектът предвижда ремонт и преустройство на двуетажна административна сграда, като част от първия етаж ще бъде аптечен склад, а останалите части – офиси. Основните промени включват нова дограма, подмяна на осветителни и електрически инсталации, климатична система, както и обособени товарен вход и изход за склада, помещения за почивка и бракувана стока.
- използвани програми: Autocad
-
адрес: гара Верила
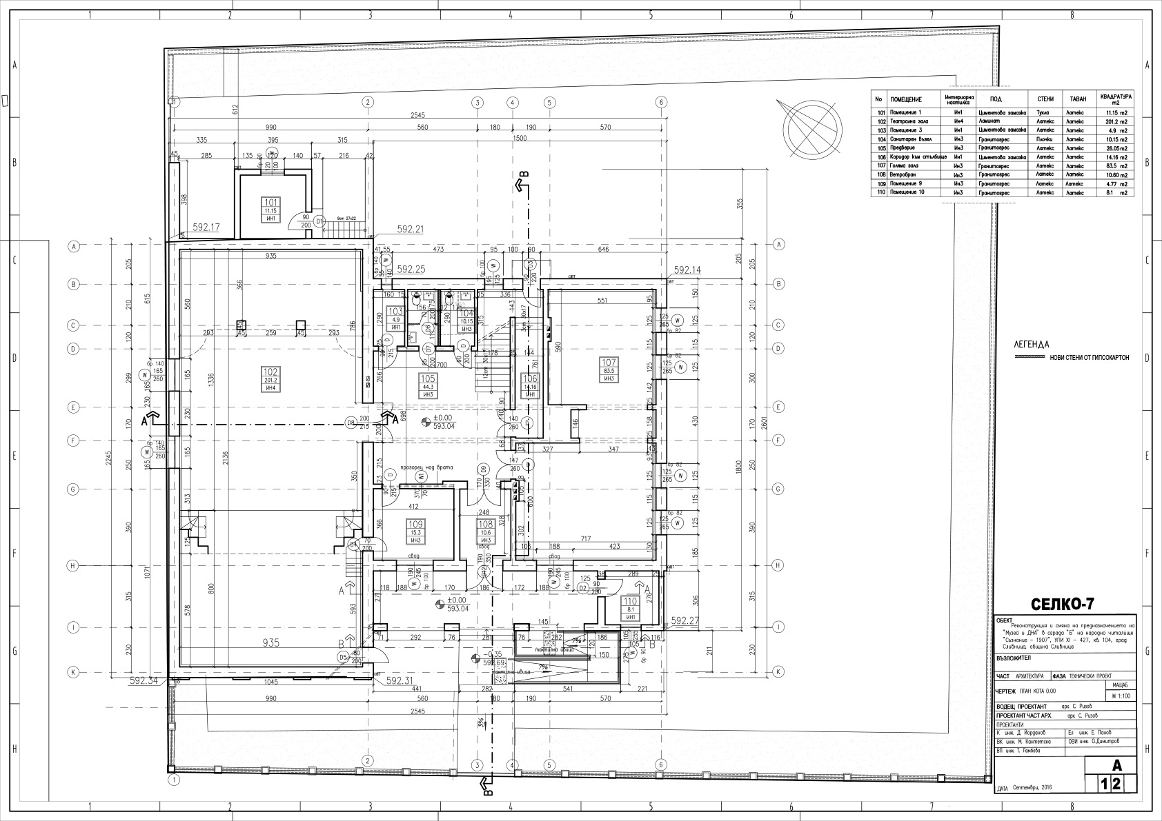
Реконструкция на Народно читалище „Съзнание – 1907"
Сградата е построена през 1932г. и е предназначена за културни събития. Беше извършена реконструкция на покрива, фасадни възстановителни дейности, и подобрения във функционалното разпределение. Първият етаж включва зали и канцеларии, а вторият – канцеларии и тераса с достъп до театралния балкон. Интересното на този обект беше да се защити противопожарно съществуващата дървена конструкция на покрива, който беше видим елемент в голямата зала.
- използвани програми: Autocad
-
адрес: Сливница, ул. Паисий Хилендарски